佳礼资讯网

 找回密码
 注册

ADVERTISEMENT

楼主: wrey芮

♫虎穴♫ 两只老虎の家 *剩下铁花,灯,家具 & 电器就可搬家了

  [复制链接]
发表于 30-5-2013 11:37 AM | 显示全部楼层
分享你设计师朋友portfolio.
回复

使用道具 举报


ADVERTISEMENT

发表于 30-5-2013 11:48 AM | 显示全部楼层
等待。。。
回复

使用道具 举报

发表于 30-5-2013 12:11 PM | 显示全部楼层
hibiki86 发表于 28-5-2013 10:04 PM
关于大房的设计,请各位给一点意见。

做SLIDE DOOR比较好看~~ 你可以PM我,你的KITCHEN CABINET的SUPPLIER吗?
回复

使用道具 举报

发表于 30-5-2013 04:46 PM | 显示全部楼层
waiweng83 发表于 30-5-2013 09:19 AM
搂主的设计图很美哦。期待看到装修后的照片

谢谢。。有照片马上分享
回复

使用道具 举报

发表于 30-5-2013 04:48 PM | 显示全部楼层
牛油果~ 发表于 30-5-2013 09:49 AM
Hibiki,好漂亮大方的设计!
请问可以看看layout plan 吗?

你好,牛油果

layout是pdf file. 我convert mpeg才upload吧

回复

使用道具 举报

发表于 30-5-2013 04:49 PM | 显示全部楼层
胖梨子 发表于 30-5-2013 11:37 AM
分享你设计师朋友portfolio.

这个不方便吧,不过我可以介绍给你认识。

你是哪一州的人呢?

回复

使用道具 举报

Follow Us
发表于 30-5-2013 05:13 PM | 显示全部楼层
hibiki86 发表于 30-5-2013 04:48 PM
你好,牛油果

layout是pdf file. 我convert mpeg才upload吧

先谢谢你啦
回复

使用道具 举报

发表于 30-5-2013 05:18 PM | 显示全部楼层
hibiki86 发表于 30-5-2013 04:49 PM
这个不方便吧,不过我可以介绍给你认识。

你是哪一州的人呢?

ipoh                  

回复

使用道具 举报


ADVERTISEMENT

发表于 30-5-2013 07:36 PM | 显示全部楼层
胖梨子 发表于 30-5-2013 05:18 PM
ipoh

我帮你问她ipoh有做没有
回复

使用道具 举报

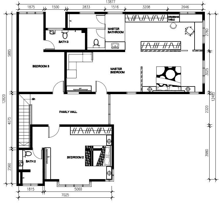
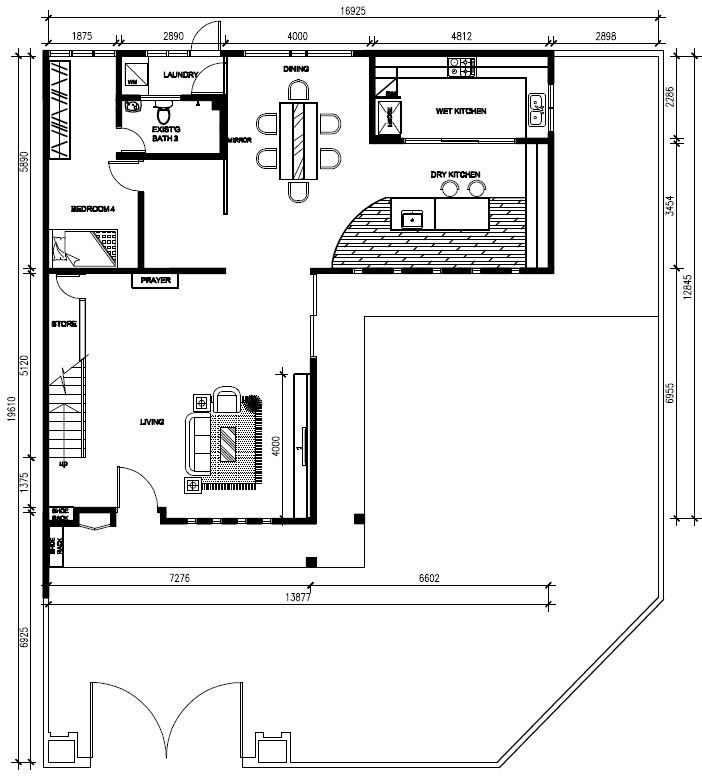
 楼主| 发表于 30-5-2013 11:19 PM | 显示全部楼层
楼下

客厅


神台


干厨房


湿厨房


饭厅


屋外鞋架





本帖最后由 wrey芮 于 30-5-2013 11:23 PM 编辑

评分

参与人数 1人气 +5 收起 理由
牛油果~ + 5 谢谢分享,好漂亮!

查看全部评分

回复

使用道具 举报

 楼主| 发表于 30-5-2013 11:27 PM | 显示全部楼层
楼上


主人房内:
娱乐区


睡眠区



wardrobe


梳妆台和Study table


厕所
回复

使用道具 举报

 楼主| 发表于 30-5-2013 11:32 PM | 显示全部楼层
yonggenyin 发表于 30-5-2013 12:11 PM
做SLIDE DOOR比较好看~~ 你可以PM我,你的KITCHEN CABINET的SUPPLIER吗?

我们还在找着家私佬 。。 要做厨房的cabinet ..房间的。。 还有电视架等等。。


回复

使用道具 举报

发表于 30-5-2013 11:38 PM | 显示全部楼层
wrey芮 发表于 30-5-2013 11:32 PM
我们还在找着家私佬 。。 要做厨房的cabinet ..房间的。。 还有电视架等等。。

其实我还在想,有些家私买便的比较好,还是定做比较好?都是钱在做怪~~
回复

使用道具 举报

 楼主| 发表于 31-5-2013 12:18 AM | 显示全部楼层
yonggenyin 发表于 30-5-2013 11:38 PM
其实我还在想,有些家私买便的比较好,还是定做比较好?都是钱在做怪~~

就是找几家来比价钱。。如果订做和现成的价钱差不远。就订做~
下个月midvalley 有Reno fair
会去走走
回复

使用道具 举报

 楼主| 发表于 3-6-2013 10:29 PM | 显示全部楼层
开工了


















本帖最后由 wrey芮 于 3-6-2013 10:41 PM 编辑

回复

使用道具 举报

 楼主| 发表于 5-6-2013 12:54 PM | 显示全部楼层
6/4 - 打地基



回复

使用道具 举报


ADVERTISEMENT

发表于 5-6-2013 02:33 PM | 显示全部楼层
恭喜LZ。。我想問LZ那些樹木打地基,是什麽樹來的?
回复

使用道具 举报

发表于 5-6-2013 10:19 PM | 显示全部楼层
hoe9077 发表于 5-6-2013 02:33 PM
恭喜LZ。。我想問LZ那些樹木打地基,是什麽樹來的?

kayu bakau....

回复

使用道具 举报

发表于 5-6-2013 10:39 PM | 显示全部楼层
hibiki86 发表于 5-6-2013 10:19 PM
kayu bakau....

大約会花上多少钱装修呢?可以介绍你朋友?
打算於两年后装修我在Setia Mall 后方的SOFO



回复

使用道具 举报

 楼主| 发表于 6-6-2013 12:20 PM | 显示全部楼层
sinmal 发表于 5-6-2013 10:39 PM
大約会花上多少钱装修呢?可以介绍你朋友?
打算於两年后装修我在Setia Mall 后方的SOFO

setial mall 后面那个已经卖完了?
介意公开售价吗?
应该很贵吧。。

你要的是装修佬的还是Interior designer 的?
回复

使用道具 举报

您需要登录后才可以回帖 登录 | 注册

本版积分规则

 

ADVERTISEMENT



ADVERTISEMENT



ADVERTISEMENT

ADVERTISEMENT


版权所有 © 1996-2023 Cari Internet Sdn Bhd (483575-W)|IPSERVERONE 提供云主机|广告刊登|关于我们|私隐权|免控|投诉|联络|脸书|佳礼资讯网

GMT+8, 26-11-2025 11:16 PM , Processed in 0.138083 second(s), 25 queries , Gzip On.

Powered by Discuz! X3.4

Copyright © 2001-2021, Tencent Cloud.

快速回复 返回顶部 返回列表