|
查看: 12852|回复: 60
|
铲平旧屋建新屋 ~ 我们的幸福小窝 更新07/06/12屋子不见了>.<
[复制链接]
|
|
|
本帖最后由 Laine 于 7-6-2012 02:21 PM 编辑
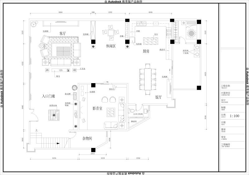
经过了一整年的寻屋寻地计划, 终于决定放弃了, 不是地点不好就是价钱太贵, 两个朝九晚五的平民百姓根本负担不起. 考虑了好久, 终于决定把LG的旧家铲平, 建一间新的, 做到来还便宜过买新屋
旧家 - 屋龄跟我同年的单层排屋, 角头间, 地很大, 形状前宽后窄, 很难设计
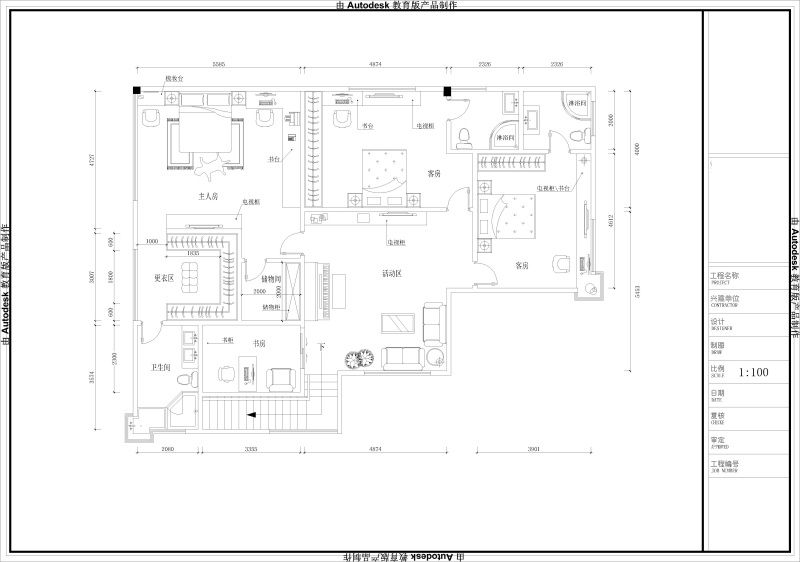
目标 - 改建成双层, 加宽, 不要浪费地
 
看, 这么大的地才用了那么一小块, 还是单层 整个被白色墙围住的都是空地哦
2011 - Feb ~ 开始准备工作, 了解程序, 找人画图
2011 - Mar ~ 找到价钱合适的draftsman
2011 - Apr ~ 找bank借loan
2011 - Jul ~ 邻居终于肯签我们的装修图了~
2011 - Aug ~ 交图给DBKK
2011 - Sep ~ Loan approved
2012 - Jan ~ DBKK approved drawing
2012 - Feb ~ Draftsman的Autocad图拿到了2012 - Mar - 租客终于搬出去了, exterior design和engineering图也画好了
2012 - Apr - 开工咯~~
程序还真是超乎想象的多, 看在$$的份上, 我忍!!!
改了八百遍还想再改的floor plan 本地的平面设计图有些小贵, 有一天在taobao闲逛的时候发现中国的id蛮便宜, 而且还会考虑到风水, 阳光, 空间利用等等
楼上楼下一共rm300, 改了两次, 觉得还蛮值的.
  |
|
|
|
|
|
|
|
|
|
|

楼主 |
发表于 3-2-2012 05:01 PM
|
显示全部楼层
本帖最后由 Laine 于 6-6-2012 08:29 AM 编辑
每个人最关心的一环 - 价钱
LG算的BQ我看了也不明白, 就只会看个总数 RM331,722  很sweat
这还只是把屋子盖好而已, 装修家具电器根本不敢想, 等做完了再慢慢打算吧. 现在只希望老天爷帮帮忙, 别给我点surprise. 现在没有人知道地下的情况, 如果有什么奇奇怪怪的问题的话, 我借的loan还不够把屋子盖好就惨了 |
|
|
|
|
|
|
|
|
|
|

楼主 |
发表于 3-2-2012 05:01 PM
|
显示全部楼层
|
|
|
|
|
|
|
|
|
|

楼主 |
发表于 3-2-2012 05:02 PM
|
显示全部楼层
本帖最后由 Laine 于 3-2-2012 12:51 PM 编辑
先从找人画图说起
第一个当然是找朋友, 无奈朋友里只有一个是architect, 而且几年没联络过, 他读书的时候曾经答应我以后免费帮我画我的第一间家. 结果....不得空
之后LG找自己公司partner的architect, 开价30k, 直接跳过
第三个是外面找的draftsman, 6千包submit, architect & structure图
最后打给DBKK, 介绍了一位registered draftsman, 2500包submit, architect图
budget有限, 选最便宜的
旧家的floor plan
 |
|
|
|
|
|
|
|
|
|
|

楼主 |
发表于 3-2-2012 05:02 PM
|
显示全部楼层
本帖最后由 Laine 于 6-6-2012 08:30 AM 编辑
奇怪的地型, 很难设计
虽然说面积很大, 可是DBKK的setback requirement要求太高, 前面20尺, 侧面20尺, 后面20尺, 楼上靠近邻居那side要空10尺, 剩下的空间根本就很小做不到什么东西了.
花了几个月时间画好图后, 要开始烦怎样叫邻居签名, 还好邻居不是很ngiamchiam, 2个星期就签了 |
|
|
|
|
|
|
|
|
|
|
发表于 3-2-2012 05:02 PM
|
显示全部楼层
恭喜恭喜,沙发坐定定先,看你的旧屋大变身 |
|
|
|
|
|
|
|
|
|
|

楼主 |
发表于 3-2-2012 05:02 PM
|
显示全部楼层
本帖最后由 Laine 于 6-6-2012 08:55 AM 编辑
找完draftman就要找engineer了
由于engineer责任重大, 不敢乱乱来, 尽量避免找朋友, 万一以后有个三长两短不好责备
还好问了几个engineer收费都差不多, 都是2500 - 4000之间
最后决定用LG同事的朋友, 刚刚拿到IR牌, 感觉比较有保障, 友情价rm3000, 应该蛮值得吧 |
|
|
|
|
|
|
|
|
|
|

楼主 |
发表于 3-2-2012 05:20 PM
|
显示全部楼层
恭喜恭喜,沙发坐定定先,看你的旧屋大变身
海市蜃楼 发表于 3-2-2012 09:02 AM 
最快估计都要明年新年哦..现在租户还没搬出去, 下个月头才搬, 希望下个月尾可以开始demolish好头痛哦, 不知道要铲到完还是要留一部分用回
铲完不止是钱的问题, 还怕kacau到隔壁 |
|
|
|
|
|
|
|
|
|
|
发表于 3-2-2012 05:22 PM
|
显示全部楼层
最快估计都要明年新年哦..现在租户还没搬出去, 下个月头才搬, 希望下个月尾可以开始demolish好头痛哦, ...
Laine 发表于 3-2-2012 05:20 PM 
如果是建双层的通常铲完会更好吧? |
|
|
|
|
|
|
|
|
|
|
发表于 3-2-2012 05:35 PM
|
显示全部楼层
|
|
|
|
|
|
|
|
|
|

楼主 |
发表于 3-2-2012 05:47 PM
|
显示全部楼层
如果是建双层的通常铲完会更好吧?
海市蜃楼 发表于 3-2-2012 09:22 AM 
后面家也有建双层, 直接加二楼而已, 听developer(LG的前老板)讲那块地是山地来的, 很硬下, 挖都挖不到, 下面是类似Y型的footing
铲完要很多时间, 很多钱
developer的3层office lot隔壁街, 也没有做piling
我想不要铲, 加多几个footing, 试下打piling在extend的地方, 不懂可以没有 |
|
|
|
|
|
|
|
|
|
|

楼主 |
发表于 3-2-2012 05:48 PM
|
显示全部楼层
|
|
|
|
|
|
|
|
|
|
发表于 3-2-2012 06:14 PM
|
显示全部楼层
有ID/engineer/contractor好介绍?
Laine 发表于 3-2-2012 05:48 PM 
KK就没有了,sdk就有。
我朋友是做这一行的,要吗? |
|
|
|
|
|
|
|
|
|
|
发表于 3-2-2012 07:00 PM
|
显示全部楼层
|
|
|
|
|
|
|
|
|
|

楼主 |
发表于 3-2-2012 08:31 PM
|
显示全部楼层
|
|
|
|
|
|
|
|
|
|
发表于 3-2-2012 08:54 PM
|
显示全部楼层
[quote]远水救不了近火, ID的话我要
你去诗华日报找找看,有时我看到那儿有这类的广告。 |
|
|
|
|
|
|
|
|
|
|

楼主 |
发表于 3-2-2012 09:15 PM
|
显示全部楼层
|
|
|
|
|
|
|
|
|
|
发表于 3-2-2012 09:42 PM
|
显示全部楼层
有登广告的价钱都很漂亮KK的ID吃钱不眨眼, 那天我去问了一个朋友介绍的ID, 一间家lumsum 4万块, 差 ...
Laine 发表于 3-2-2012 09:15 PM 
我有点赞同你的说法,我同事在KK找到一个ID,只是设计图RM3K。2张平面,2张3D客厅,4张睡房。我真的吓到。。。哈哈!也许小弟不知道市场价,但对我来说真的很贵了。
我同事最无语的事,他的设计图和我同事的要求是不符合的。可以说上不是根据我同事要求,而是那位设计师的个人作品。
但我还是深信还是有好的ID的。 |
|
|
|
|
|
|
|
|
|
|
发表于 5-2-2012 03:30 PM
|
显示全部楼层
很厉害哦~ |
|
|
|
|
|
|
|
|
|
|
发表于 5-2-2012 03:59 PM
|
显示全部楼层
期待你的新屋。。。。
强烈建议楼主把整个过程拍下来,镶起来挂在新家,以后可以和子子孙孙看图说故事。 |
|
|
|
|
|
|
|
|
| |
本周最热论坛帖子
|